Ve výhradním zastoupení majitele nabízíme rodinný dům s velkou dílnou v klidné ulici v obci Bobnice – Kovansko, tři kilometry od Nymburka.
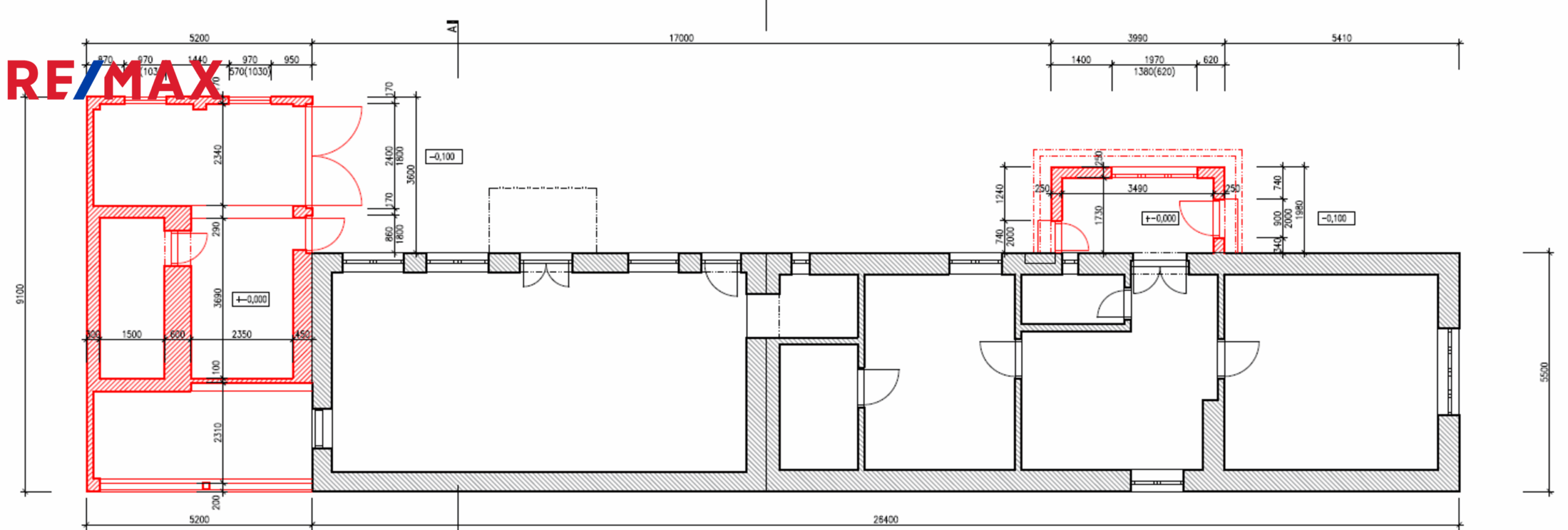
Dům je v původním stavu a má vnitřní dispozici 2+1 s možností rozšíření obytné části o další pokoje. Obytná část nyní obsahuje vstupní předsíň 5,9 m2, kuchyň se spíží 16 m2, obývací pokoj 21,5 m2, ložnici 20,5 m2 a koupelnu s WC. Součástí jedné budovy je navazující místnost/kotelna 14,5 m2, dílna/truhlárna o dvou podlažích (přízemí 28 m2 a patro 40 m2) a kůlna 40 m2.
Na pozemku je dále patrový přístavek, který sloužil jako sklad na uhlí, dřevo a chlívek pro chov domácích zvířat. Celková výměra dalších užitných prostor je cca 160 m2.
Nabízená nemovitost má malou předzahrádku a zahrádku s jabloní.
Dům je napojen na elektřinu, plyn, kanalizaci a vodovod. Na pozemku je také studna.
Vytápění je pomocí plynového kotle, jsou zde i akumulační kamna a v kuchyni kamna na pevná paliva.
Veškerá občanská vybavenost je v blízkém Nymburku a v Poděbradech.
Prodávající si vyhrazuje právo vybrat kupujícího na základě jím zvolených kritérií.







































