Exkluzivně nabízíme krásný rodinný dům 5+kk s garáží ve velice klidné rezidenční části Prahy 9 – Újezd nad Lesy, v ulici Luníkovská.
Dvoupodlažní zděný řadový dům (o užitné ploše 142 m2 + úložný prostor na půdě) byl postaven v roce 2009 a disponuje v přízemí dobře řešenou světlou kuchyní s navazující jídelnou a obývacím pokojem se vstupem na zahradu s terasou, dětskými prvky a bazénem. Dále je vstupní předsíň s vestavěnou skříní, WC s umyvadlem, komora a velká garáž 18 m2.
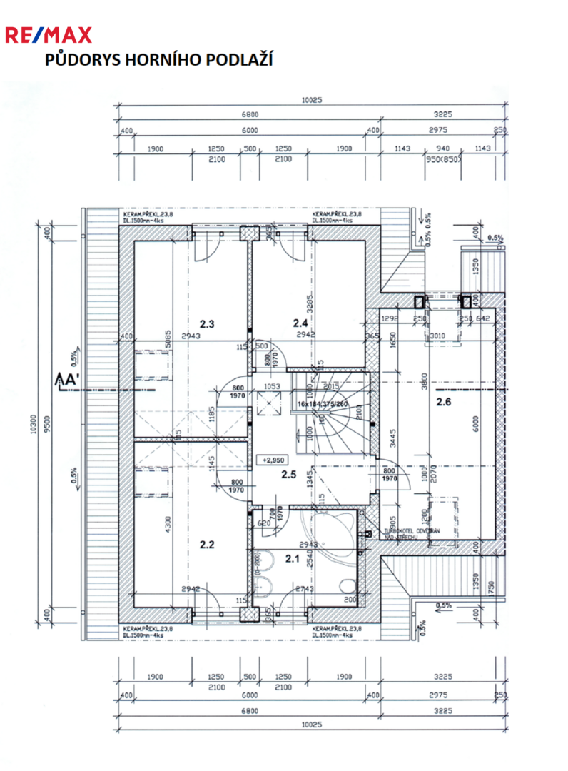
V patře domu jsou 4 samostatné klimatizované ložnice, hala a velká koupelna s podlahovým topením. Ve všech ložnicích jsou praktické vestavěné skříně, další úložný prostor je na půdě.
Na oknech v přízemí jsou instalovány elektricky ovládané venkovní žaluzie, vstupní dveře jsou bezpečnostní, v domě je také zabezpečovací systém s možností napojení na pult centrální ochrany. Na všech oknech v domě jsou bezpečnostní folie. Nábytek v přízemí je součástí kupní ceny, je zde i nainstalován projektor s plátnem pro domácí kino.
Na pozemku před garáží je možné parkovat druhý automobil. U vstupu do domu, v přední části zahrady se nachází zahradní domek na kola a nářadí.
Dům je napojen na obecní vodovod, kanalizaci i plyn (ten není nyní využíván, vytápění a ohřev teplé vody je pomocí tepelného čerpadla). Do domu je zaveden rychlý internet od společnosti Interconnect. Pro zajištění stability jsou vnitřní rozvody internetu řešeny kabelem.
Celkové měsíční náklady na bydlení jsou pro čtyřčlennou rodinu okolo 7 000,-Kč.
Atraktivní rezidenční lokalita s výbornou dopravní dostupností do centra Prahy a přitom v pěším dosahu Klánovického lesoparku. Zastávka autobusu je nedaleko a v dosahu je také vlakové spojení. V okolí je kompletní občanská vybavenost – v blízkosti jsou dvě soukromé školky, (anglická přímo v ulici a státní školka cca 400m od domu), školy, dětské hřiště přímo před domem, sportoviště, obchody a restaurace.





























