Exkluzivně nabízíme zcela jedinečnou nemovitost umístěnou v klidné ulici, v rezidenční lokalitě, v první řadě domů s krásným volným výhledem do zeleně a do okolí.
Zděný zateplený dům byl kolaudován v roce 2020, má skvěle promyšlenou dispozici a je chytře zasazen do mírně svažitého terénu.
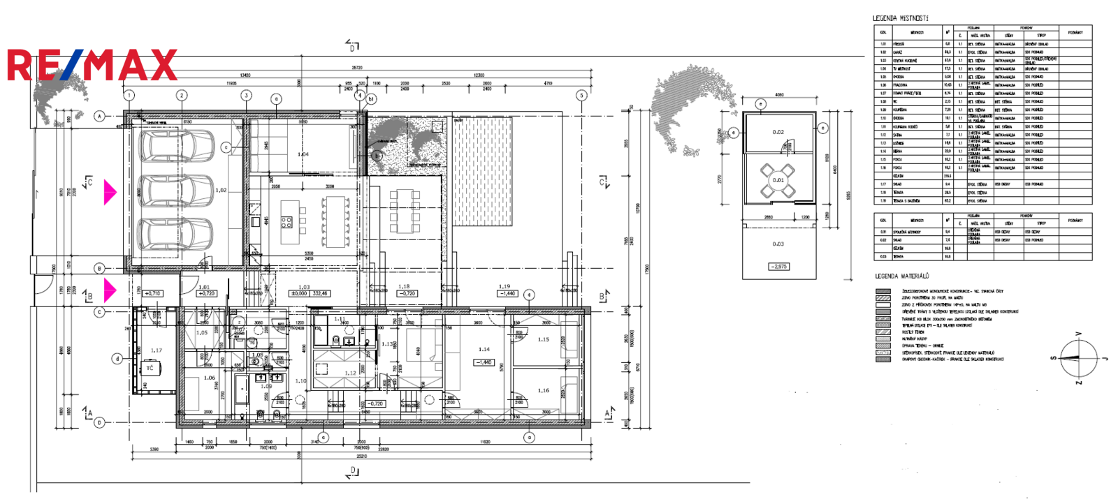
Jednopodlažní vila s celkovou plochou 276 m2 (dům 216 m2 + terasa s bazénem 65 m2) má obývací (televizní pokoj) s navazující prostornou jídelnou a kuchyní (celkem o výměře 61 m2), hlavní ložnici se šatnou a koupelnou s WC, tři pokoje, koupelnu s WC, chodbu s vestavěnými skříněmi, tělocvičnu/hernu, garáž pro tři vozy (49 m2), technickou místnost a samostatné WC.
Základní parametry domu – zdivo Porotherm + zateplení 16 cm minerální vata, okna -hliníkové profily s výplněmi z izolačními trojskly, vytápění tepelným čerpadlem voda vzduch, teplovodní podlahové vytápění v celém domě, alarm, vchodové dveře na otisk prstu, kamerový systém + Jablotron, kvalitní materiály a zařizovací předměty.
Vila je v precizním provedení, interiér je vkusně zařízen vestavěným nábytkem.
Terasa o výměře 65 m2 má elektricky ovládané zastínění, zapuštěný přelivový bazén 6×3 s vyjížděcí krycí nosnou lamelou a vířivku, vše od firmy BWT.
Doporučuji prohlídku této výjimečné nemovitosti.















































