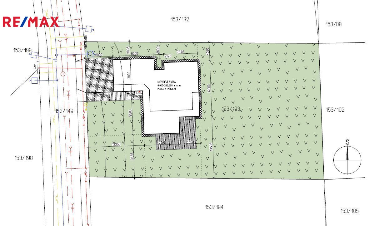
Ve výhradním zastoupení majitele nabízíme mírně svažitý pozemek o výměře 1470 m2 s rozestavěnou zděnou vilou (s platným stavebním povolením a projektovou dokumentací) o celkové užitné ploše 282 m2, který se nachází v obci Chrustenice na velmi atraktivním klidném místě s nádherným výhledem na okolní přírodu.
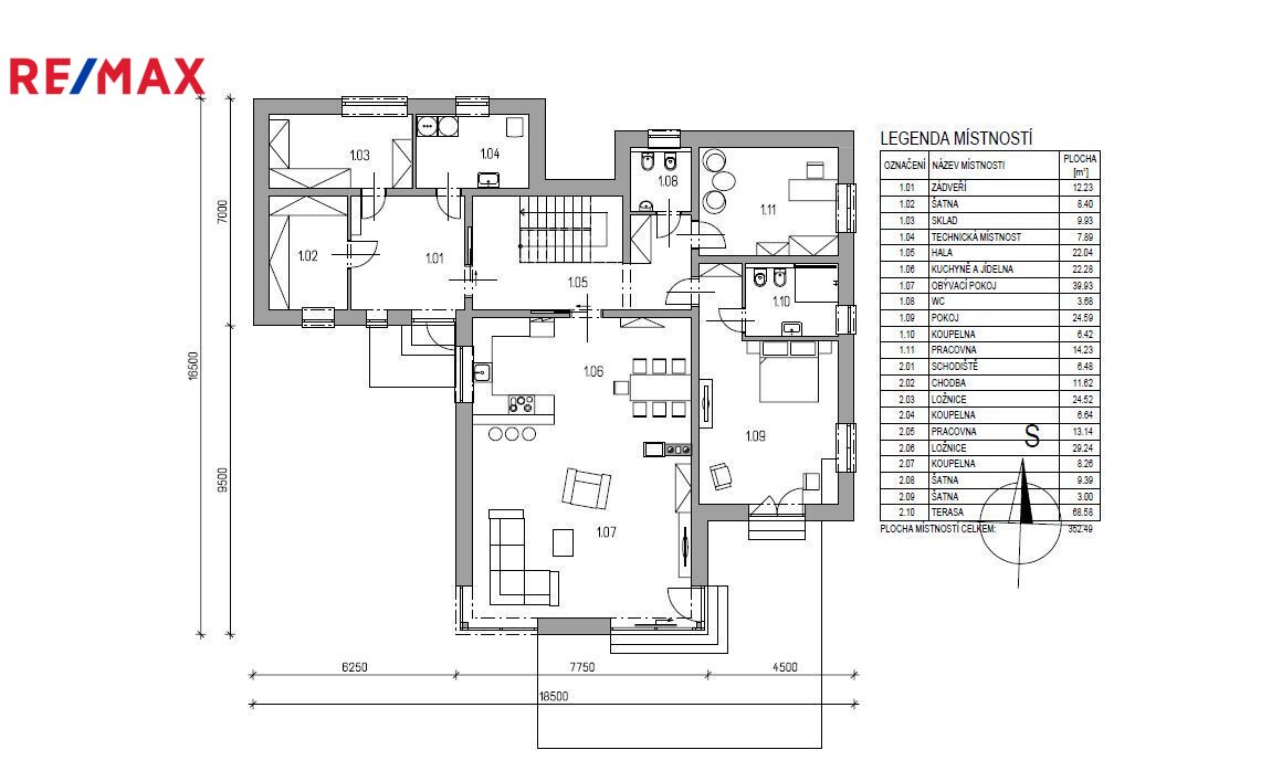
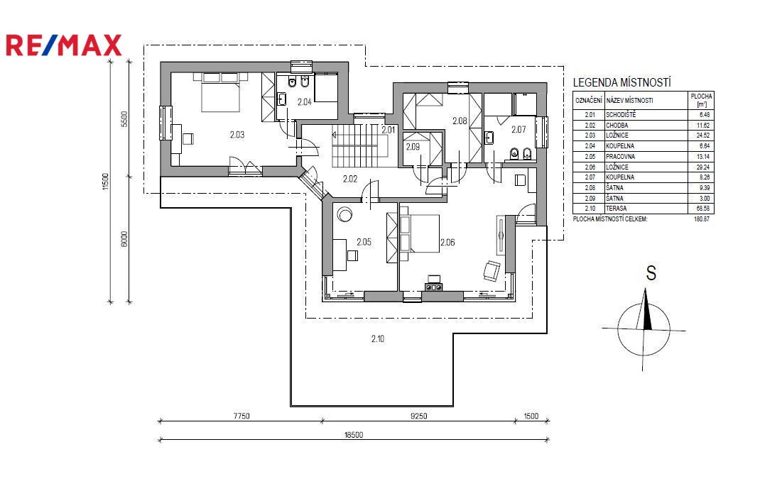
Rodinný dům 6+kk/T má dvě nadzemní podlaží a jeho vnitřní obytná plocha bude 282 m2 + terasa 111 m2 + zastřešené parkovací stání 38 m2.
K pozemku je přivedena elektřina, vodovod a plyn. Odpad je řešen v lokalitě vlastními čističkami. Kanalizace je ve vedlejší ulici.
Nemovitost je v tiché slepé ulici s krásným výhledem do údolí a na Křivoklátské lesy, a přitom v dosahu města. V okolí domu jsou pouze rezidenční vily. Obec Chrustenice je vzdálena 10 km od Prahy a 5 km od Berouna.





















